Budapest - Eladó Lakás
Elhelyezkedés
XX. kerület, Pesterzsébet
XX. kerület, Pesterzsébet
Alapterület
66 m2
66 m2
Ár
89.900.000 Ft
89.900.000 Ft
Hirdetés azonosító
OI184
OI184
Leírás
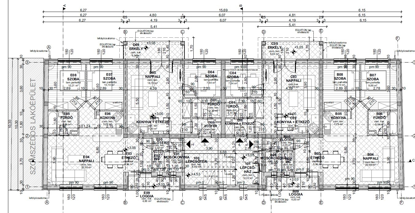
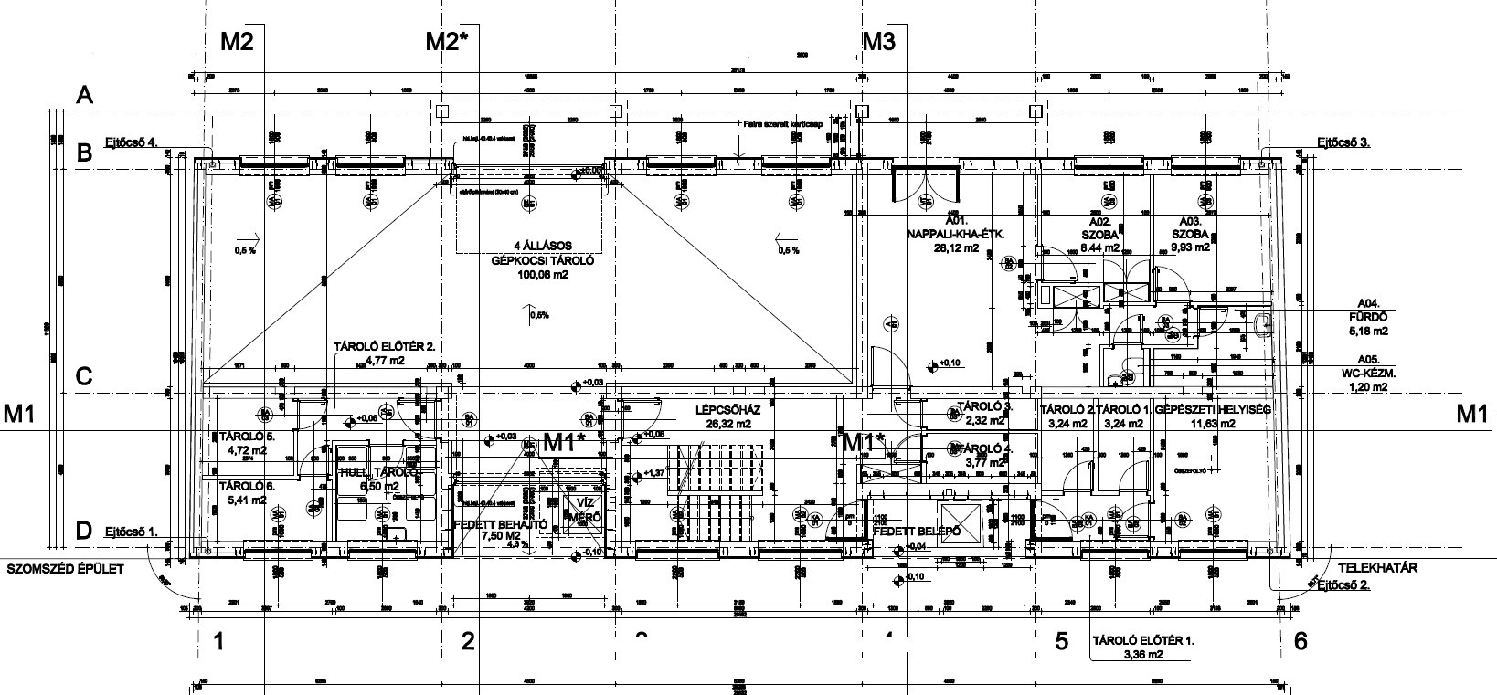
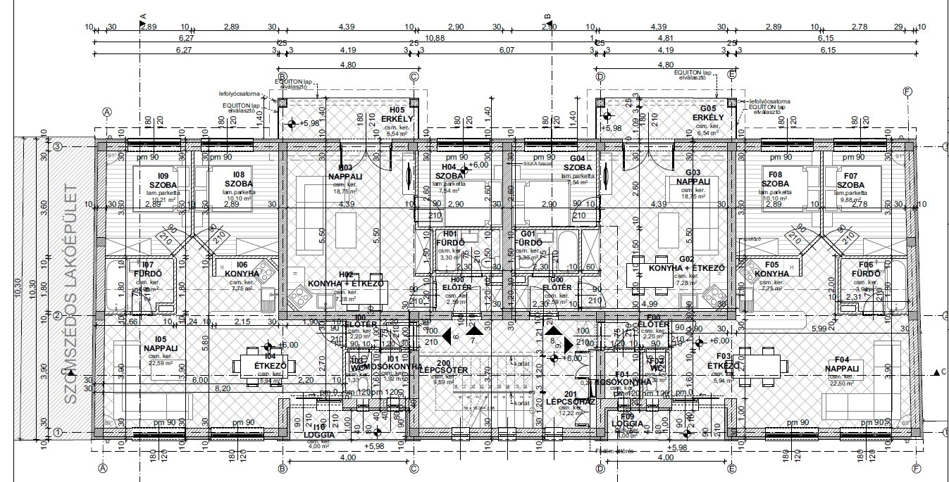
A tervezett épületben kilenc lakás kerül kialakításra, az alsó szinten egy, az 1. emeleten és a 2. emeletem 4-4db
lakás kerül kialakításra, mellékelt engedélyezési terveknek megfelelően.
Kapcsolati adatok
Érdeklődjön az ingatlanról, e-mailben!
Hasonló ingatlanok
Eladó
Budapest XX. kerület (Pesterzsébet)
A tervezett épületben kilenc lakás kerül kialakításra, az alsó szinten egy, az 1. emeleten és a 2. emeletem 4-...
79.000.000 Ft
Lakás / Tégla
Eladó
Budapest VI. kerület, Nagymező utca
Eladó 91 nm-es lakás Nagymező utcában
135.000.000 Ft
Lakás / Tégla
Eladó
Budapest IV. kerület (Újpest-Központ)
????
Megvételre kínálunk Budapest IV. kerületében, Újpest központjában, a Lebstück Mária utca / Árpád út sarká...
119.000.000 Ft
Lakás / Tégla