Budapest - Eladó Lakás
Elhelyezkedés
XX. kerület, Pesterzsébet
XX. kerület, Pesterzsébet
Alapterület
52 m2
52 m2
Ár
79.000.000 Ft
79.000.000 Ft
Hirdetés azonosító
OI183
OI183
Leírás
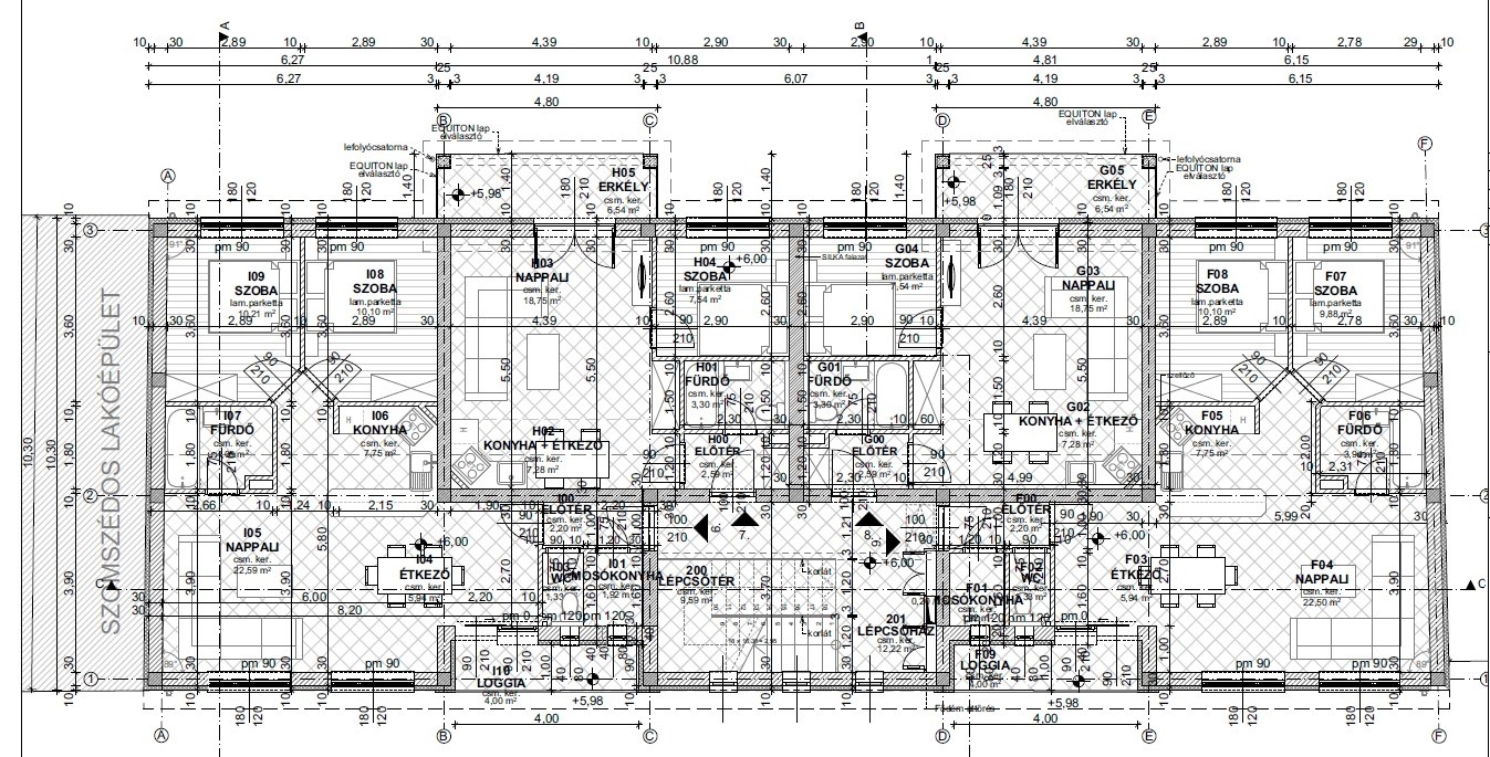
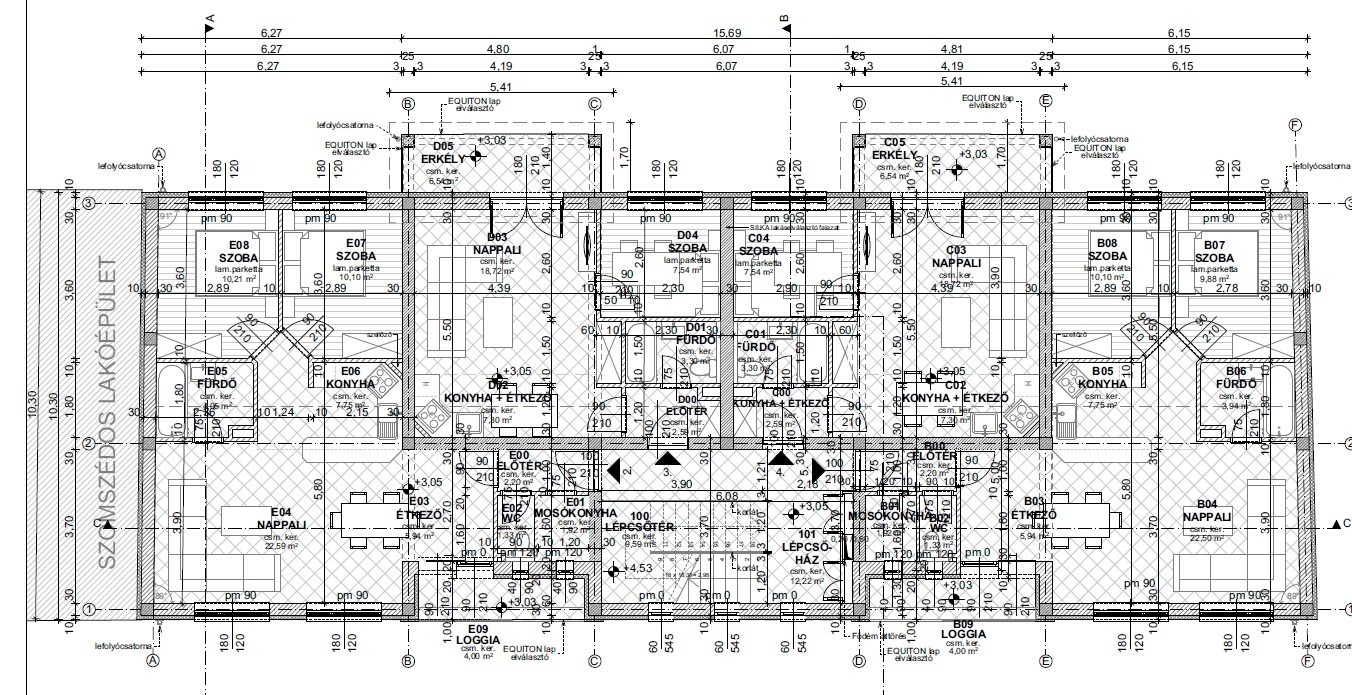
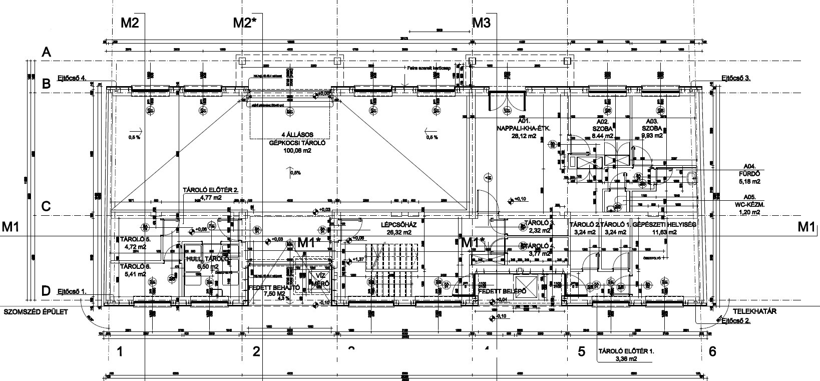
A tervezett épületben kilenc lakás kerül kialakításra, az alsó szinten egy, az 1. emeleten és a 2. emeletem 4-4db
lakás kerül kialakításra, mellékelt engedélyezési terveknek megfelelően.
Kapcsolati adatok
Érdeklődjön az ingatlanról, e-mailben!
Hasonló ingatlanok
Eladó
Budapest XX. kerület (Pesterzsébet)
A tervezett épületben kilenc lakás kerül kialakításra, az alsó szinten egy, az 1. emeleten és a 2. emeletem 4-...
89.900.000 Ft
Lakás / Tégla
Eladó
Budapest III. kerület (Testvérhegy)
Megvételre kínálunk Budapest III kerületében, Ürömhegy városrészben, ÚJ ÉPÍTÉSŰ lakásokat, kertkapcsolattal, m...
88.500.000 Ft
Lakás / Tégla
Eladó
Budapest VIII. kerület (Józsefváros (Nagykörúton kívül))
Megvételre kínálunk Budapest VIII. kerületében, a Népszínház utca rehabilitált, DZSENTRIFIKÁLT részén a II. Já...
58.000.000 Ft
Lakás / Tégla